I. Tổng quan
Đông Bắc Bích Động là khu đô thị hiện đại được đầu tư bài bản bởi Công ty Cổ phần Xây dựng và Dịch vụ Thương mại Tuấn Quỳnh, nằm trong vùng phát triển năng động của thị xã Việt Yên – Bắc Giang.
Với quy mô rộng 15,35 ha, dự án cung cấp đa dạng loại hình sản phẩm gồm:
- 511 lô liền kề (LK)
- 31 lô song lập (SL)
- 4 lô biệt thự (BT)
Toàn bộ sản phẩm có hình thức sở hữu lâu dài, mang lại giá trị bền vững cho cư dân và nhà đầu tư.

II. Vị trí
Dự án tọa lạc tại khu vực phía Đông Bắc, phường Bích Đông, thị xã Việt Yên, tỉnh Bắc Giang – trung tâm phát triển đô thị, công nghiệp và hành chính mới:
- Gần các khu công nghiệp lớn như Vân Trung, Đình Trám, Quang Châu
- Kết nối nhanh với đường QL1A, cao tốc Hà Nội – Bắc Giang
- Cách TP Bắc Giang khoảng 15 phút di chuyển
- Liền kề hệ thống trường học, chợ, UBND phường và trung tâm y tế
III. Tiện ích
Đông Bắc Bích Động được quy hoạch đồng bộ với chuỗi tiện ích phục vụ nhu cầu sống và đầu tư:
- Hạ tầng kỹ thuật hoàn chỉnh: điện, nước, chiếu sáng, thoát nước hiện đại
- Hệ thống cây xanh và đường nội khu thoáng rộng
- Khu đất dành cho trường học, nhà văn hóa, sân chơi cộng đồng
- An ninh khu đô thị đảm bảo, môi trường sống trong lành

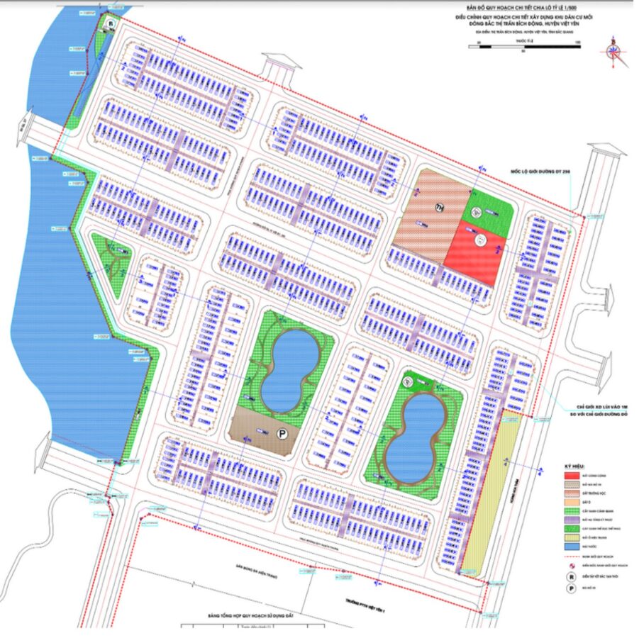
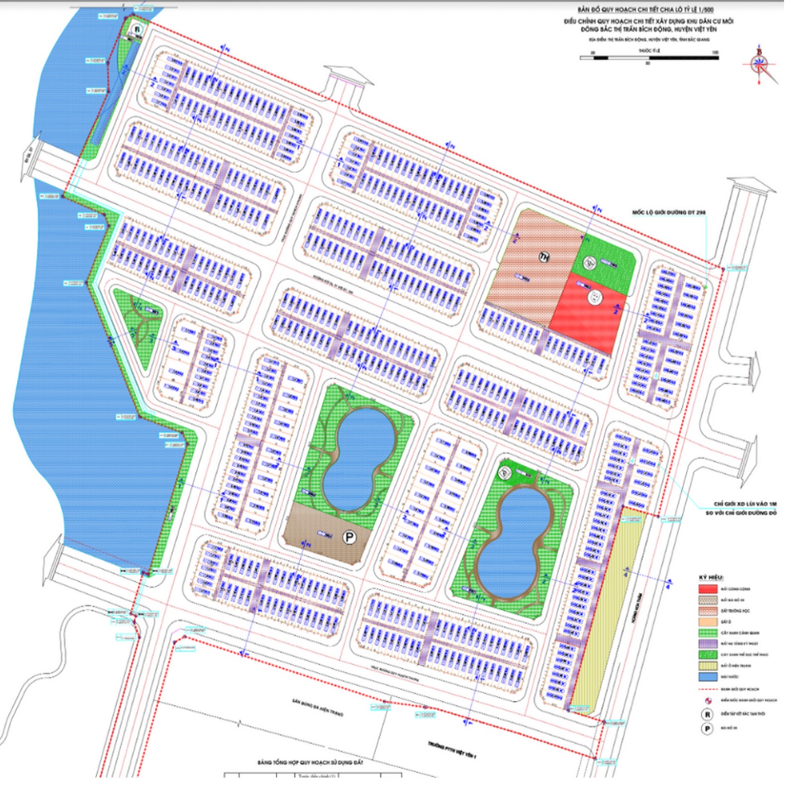
IV. Mặt bằng
- Dự án chia thành nhiều phân khu rõ ràng, sắp xếp hợp lý giữa các loại hình nhà ở
- Các tuyến đường nội khu có lộ giới từ 13,5m – 24m, tạo sự thông thoáng
- Hạ tầng kỹ thuật đã hoàn thiện, sẵn sàng bàn giao

V. Căn hộ (liền kề)
- 511 lô liền kề diện tích linh hoạt, phù hợp xây nhà ở gia đình hoặc đầu tư cho thuê
- Pháp lý rõ ràng, được xây dựng tự do theo quy chuẩn thiết kế
- Tận dụng được lợi thế giao thông và tiện ích xung quanh

VI. Shophouse
Mặc dù không công bố rõ số lượng shophouse, nhưng nhiều lô liền kề mặt trục chính có thể khai thác kinh doanh:
- Nằm trên các trục đường lớn, thuận tiện mở cửa hàng, spa, siêu thị mini
- Tiềm năng sinh lời từ nhu cầu dịch vụ cho công nhân, cư dân, khách vãng lai

VII. Pháp lý dự án
Chủ trương đầu tư: https://drive.google.com/drive/folders/1VPlIYaT6BMqzCWLrpVDQDsJ6awhd2HZG
Đồ án 1/500: https://drive.google.com/drive/folders/1VPlIYaT6BMqzCWLrpVDQDsJ6awhd2HZG
Chứng nhận PCCC: ( Đang cập nhập )
SXD xác nhận đủ điều kiện bán và cho thuê: ( Đang cập nhập ) 
